alexandros fotakis
architecture
Mark



Primary School, Pordenone, competition, 2022, 4th prize
with MT A, CandC Archittetura Ingegneria







Vacation garden with a room, Kea, 2016-2022,
with Nicoletta Caputo, photos Alina Lefa

EIA award 2022
Greek Architecture Award 2023

Nomination EUmies Awards 2024






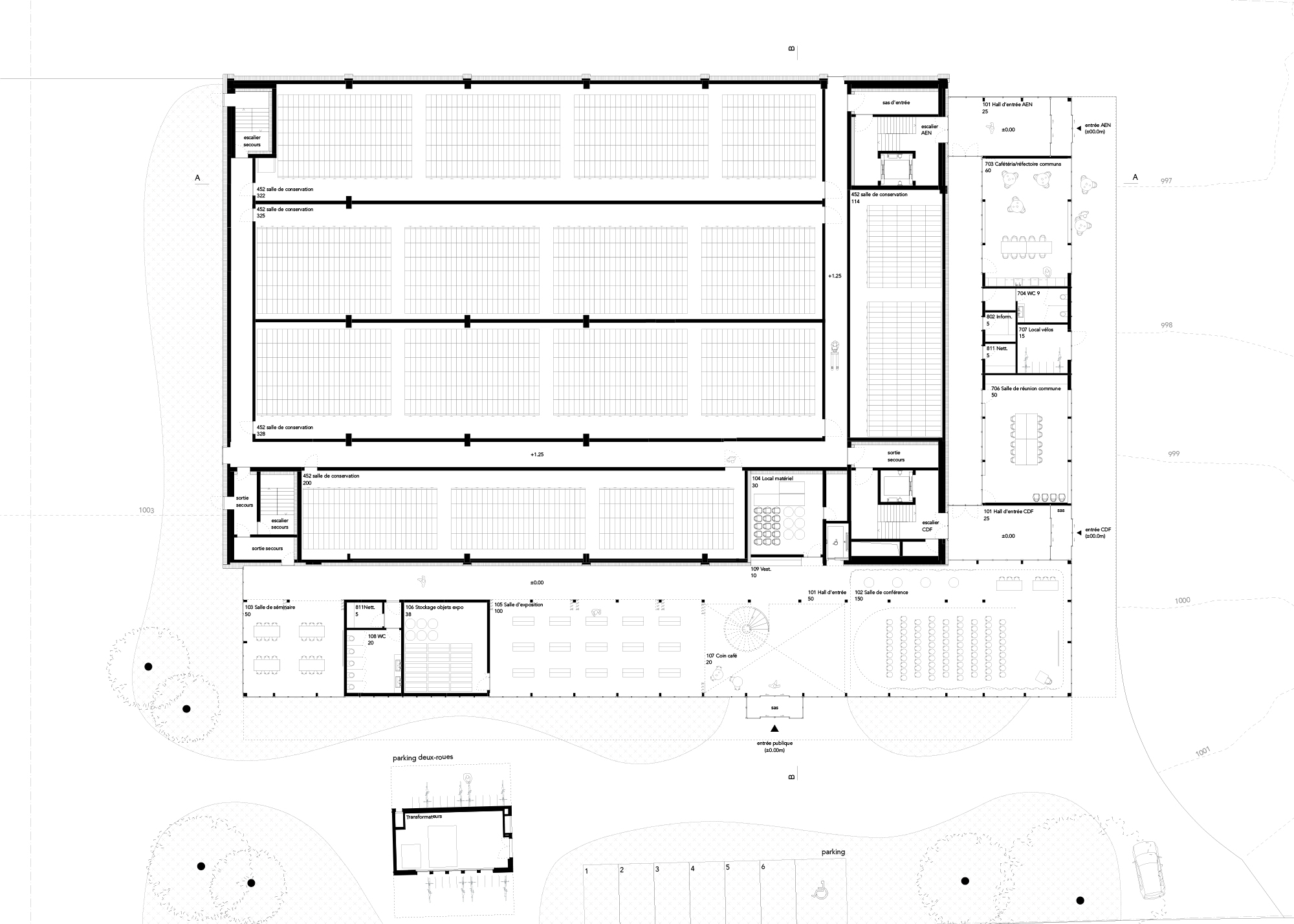
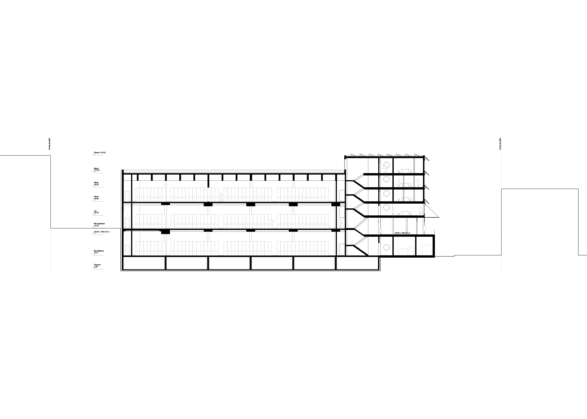
Archive and heritage centre, La Chaux-de Fonds, competition, 2022
with MT A, Källin & Associés, az ingenieurs






Social housing, Vernier, competition, 2022 
with MT A, Territoires







Paix du Soir Association, Mont-sur-Lausanne, competition, 2021, 2nd prize
with MT A, F.Borghini, studio 17, Interval Paysage





rue de sébeillon 9b
1004 lausanne
agiou polykarpou 41
171 24 athens

info@afotakis.com
+41 76 231 18 90