︎
alexandros fotakis
architecture
projects
about
Mark
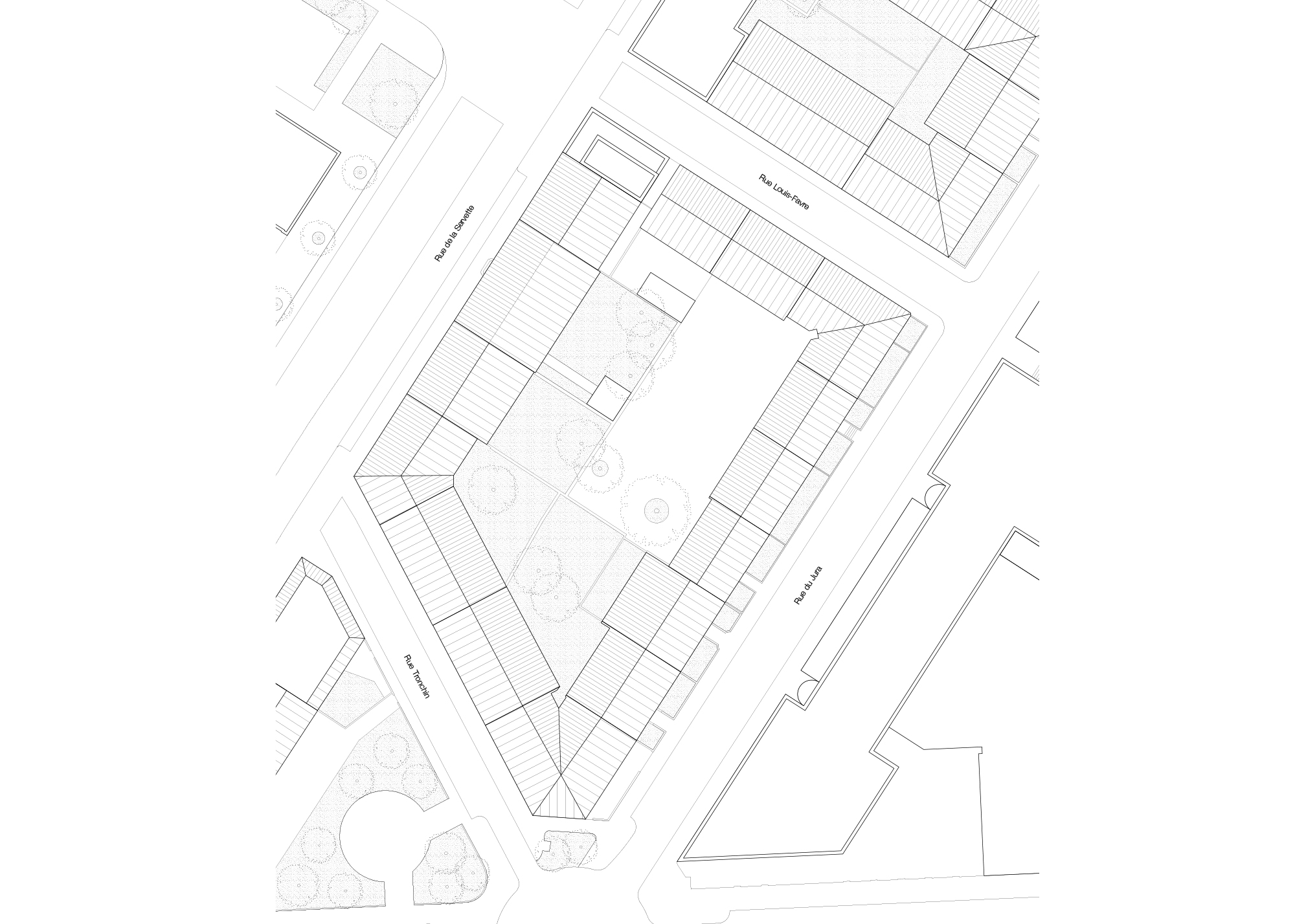
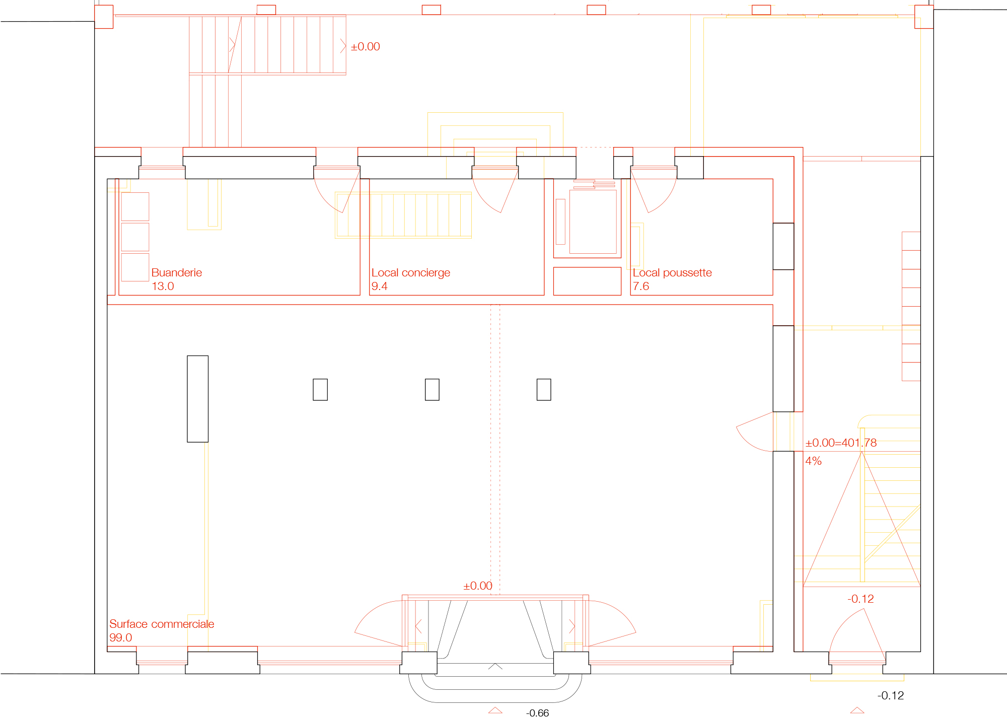
Extension and rehabilitattion of a housing building, Geneva, competition, 2017
with L.Bertolini
_
_
rue de sébeillon 9b
1004 lausanne
agiou polykarpou 41
171 24 athens
info@afotakis.com
+41 76 231 18 90