︎
alexandros fotakis
architecture
projects
about
Mark
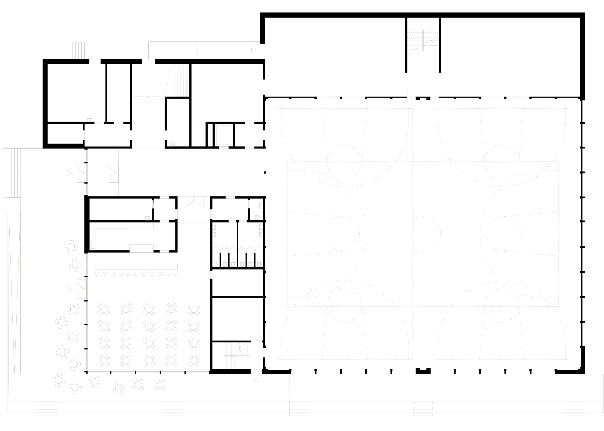
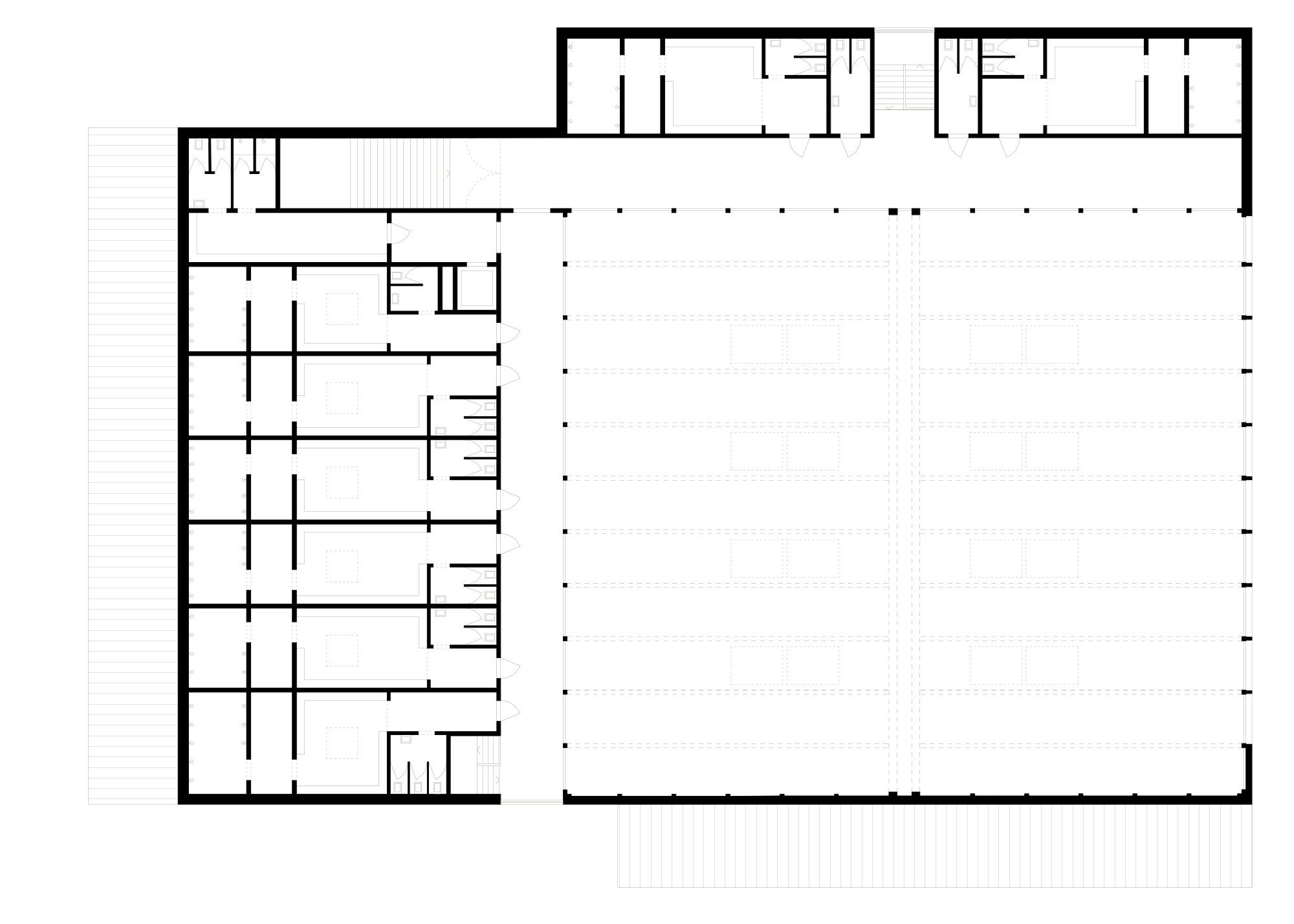
Sports Centre, Broc, competition, 2018
with L.Bertolini
∨
∨
rue de sébeillon 9b
1004 lausanne
agiou polykarpou 41
171 24 athens
info@afotakis.com
+41 76 231 18 90