︎
alexandros fotakis
architecture
projects
about
Mark
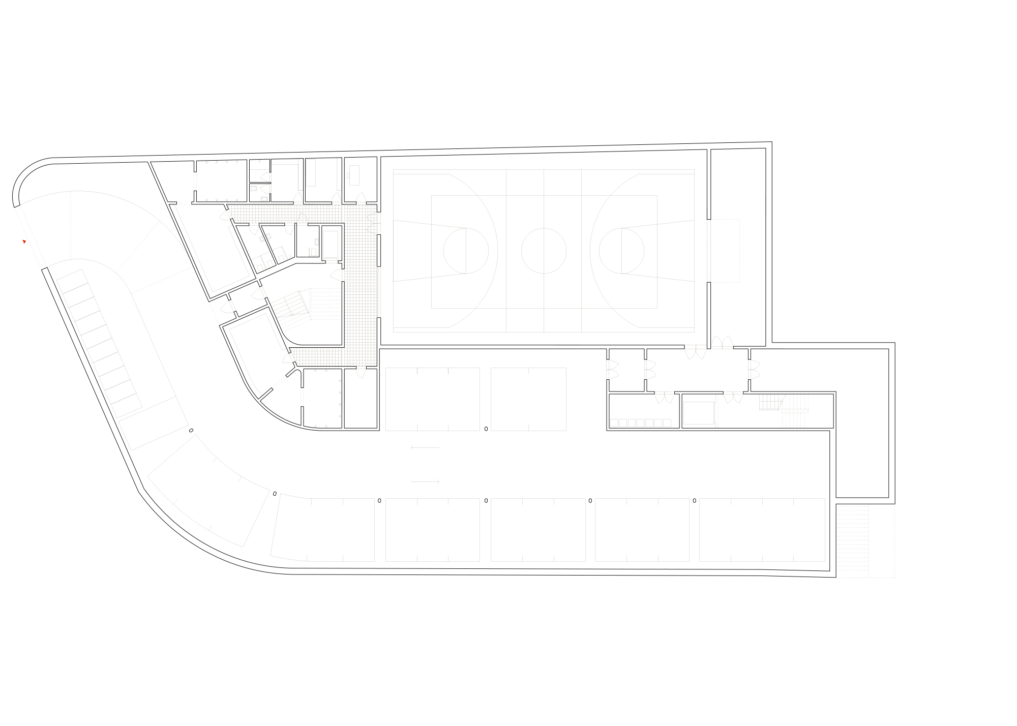
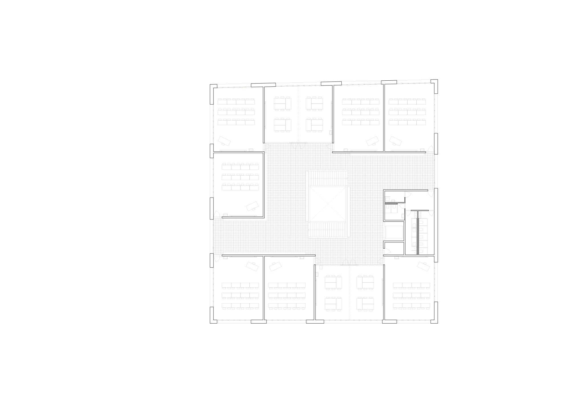
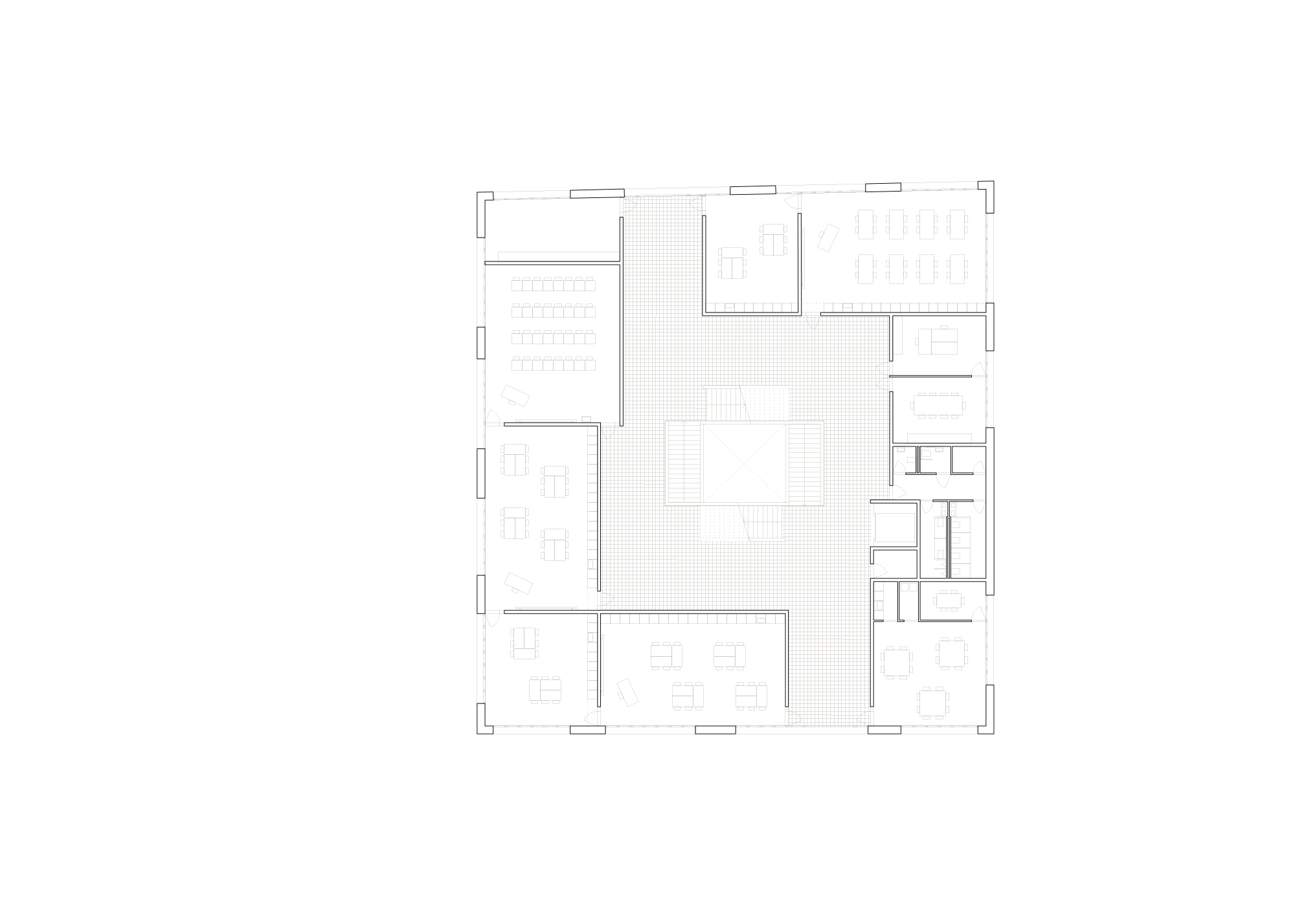
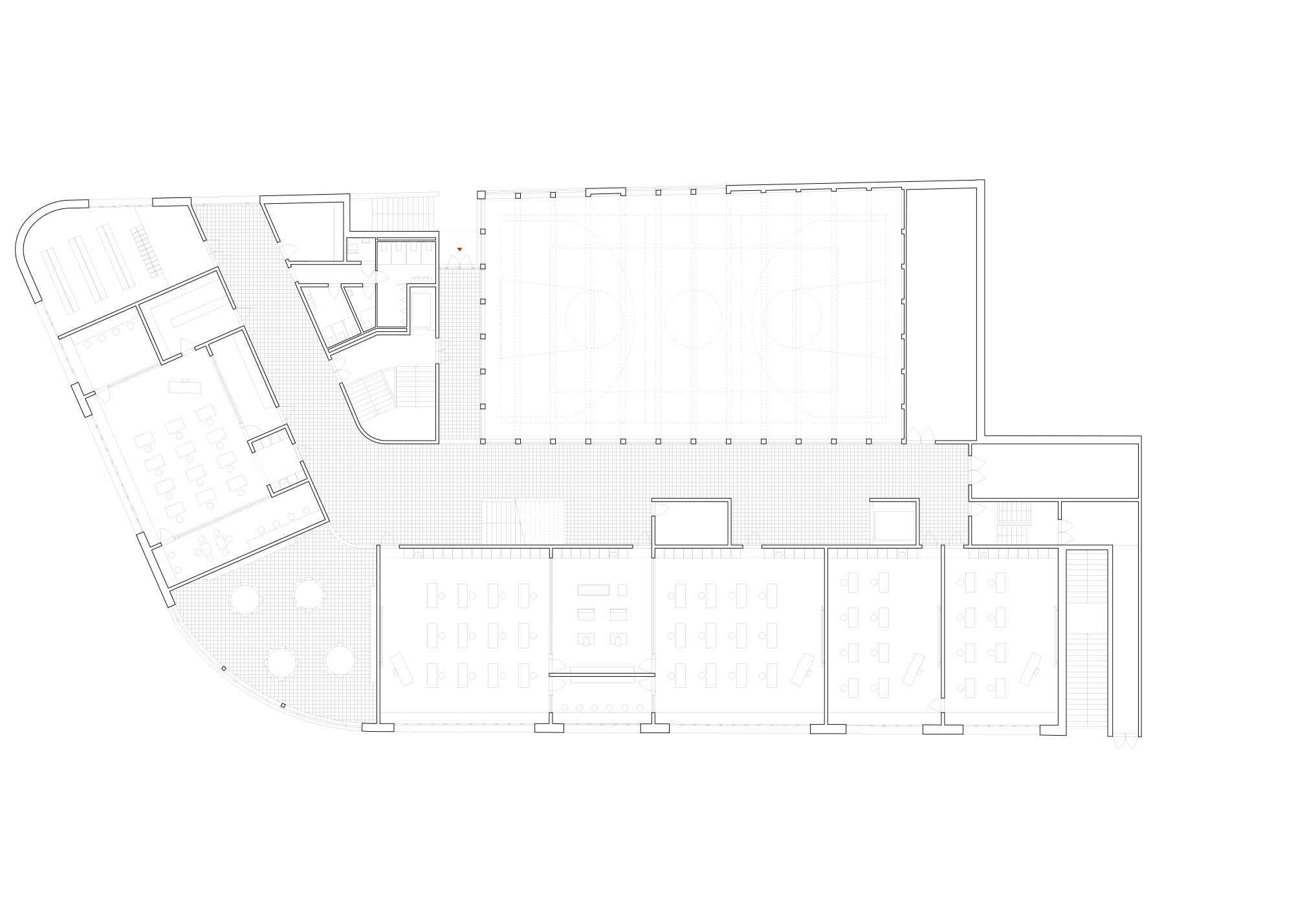
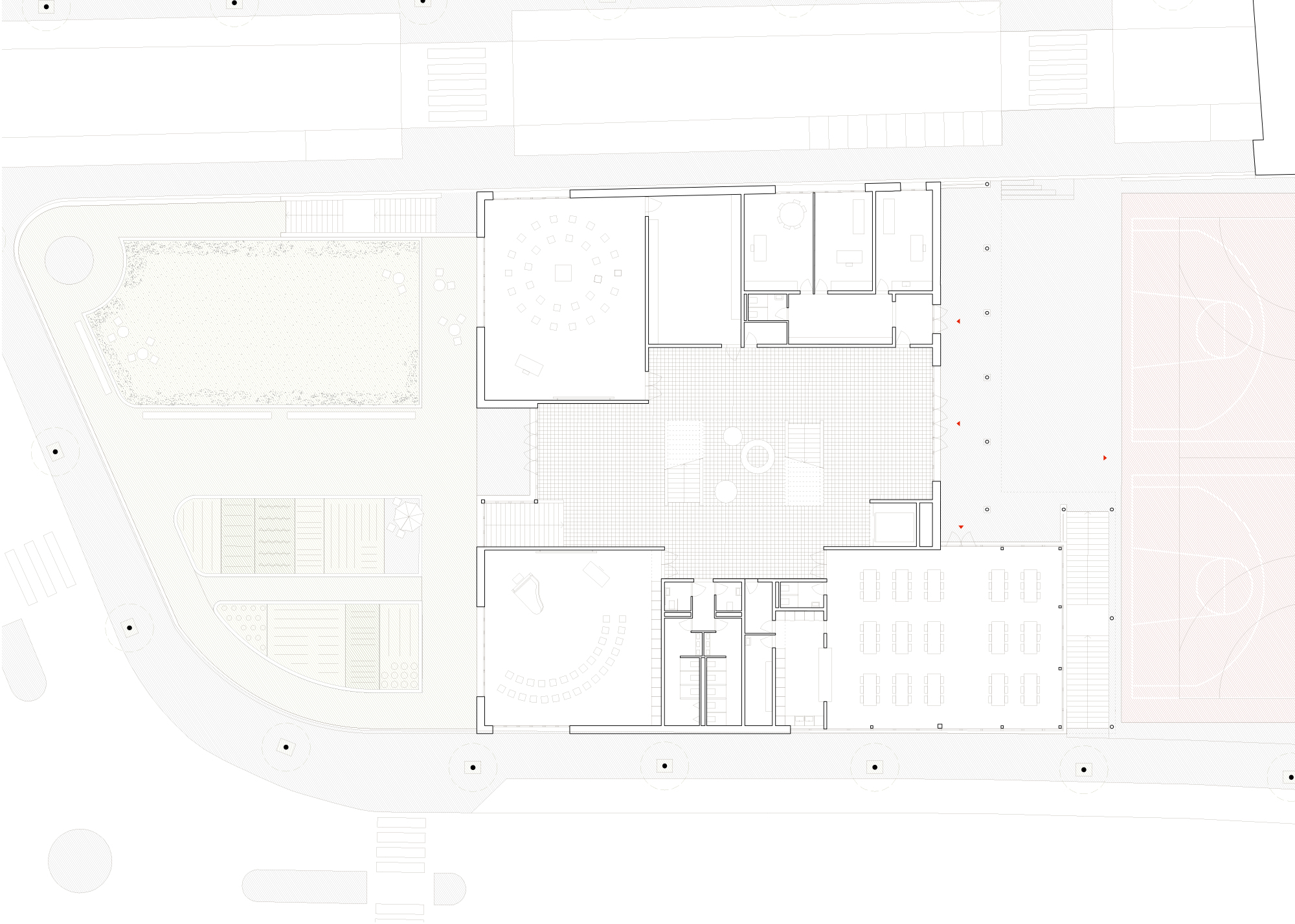
Belvedere school complex, Lausanne, competititon, 2018
with L.Bertolini,
MT A
∨
∨
rue de sébeillon 9b
1004 lausanne
agiou polykarpou 41
171 24 athens
info@afotakis.com
+41 76 231 18 90